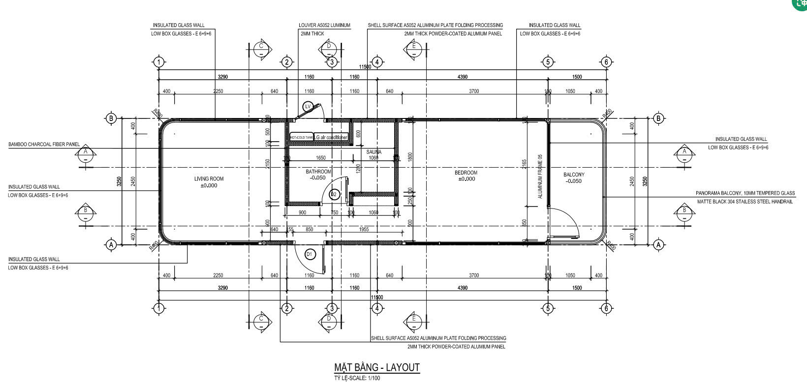
Kích thước:Dài*Rộng*Cao
Chiều dài:8.5m
Chiều rộng:3.3m
Chiều cao:3.2m
Diện tích: 28m2
Số lượng người ở:2 người
Hiệu suất điện:8 KW
Trọng lượng tịnh:6 tấn
C2 – 1 ngủ, 1 nhà vệ sinh, 1 ban công, phong cách thiết kế cổ điển nhưng cũng mang sức hút, độc đáo riêng. Cửa nhà vệ sinh được thiết kế kín đáo riêng biệt, không gian nội thất rộng rãi 28m2 và sử dụng toàn bộ hệ thống thông minh, tự động mang đến không gian hiện tại và khoa học.





